連載· 33 |《變風量空調系統》——5.4 設計參考資料
2018-02-09
5.4.2變風量智慧控制柜及系統
1. 變風量智慧控制柜
變風量空氣處理機組啟停與控制采用強弱電一體化設計,變風量空調智慧控制柜內置變頻器、智慧控制器、智能電能表(選配)、空氣斷路器、接觸器等主要設備,實現對變風量空氣處理機組的供電及全面控制。該控制柜具有以下控制功能:
(1)實現風機的啟停和變頻控制。
(2)實現對電動水閥、電動風閥等執行器以及溫度、濕度、靜壓、CO2、PM2.5、 VOC 等傳感器的監視與控制。
(3)配置彩色觸摸屏,與變風量智慧控制器連接,實現就地的參數設定與監視。
(4)控制器內置變風量控制程序,可實現定靜壓、變靜壓、可變靜壓、總風量等不同控制策略,調試和操作人員可根據項目特點進行程序自由配置。
(5)采用模糊控制和 PID 結合的控制方法,控制精度高,適應性、穩定性好。
(6)內置電能表,自動記錄風機耗電量參數;同時采集空氣處理機組熱量表參數, 可提供空氣處理機組能效評價,并將相關數據傳輸至上位機。
(7)控制柜具有自動加班申請功能,即通過觸摸屏進行加班申請設置,信息可傳至 上位機并與冷熱源機房進行通信。
(8)空調機控制帶手自動轉換開關,帶運行指示和停止指示。
(9)變頻器需采用主流品牌產品,帶操作面板,實現手自動切換。
(10)通信協議采用 PROFIBUS、MODBUS、BACnet、LONWORKS 等國際通用協議。 變風量系統上位機軟件界面如圖 5-18 所示。
2. 變風量自控網絡
(1)通信采用總線式。其中,網絡控制器與變風量控制柜間采用 PROFITBUS/ MODBUS/BACnet/LONWORKS 等通用的通信協議,通信速率不小于187.5kbit/s。變風量控制柜與VAV 控制器間采用 MODBUS/BACNET/LONWORKS 通用的通信協議,通信速 率不小于 9.6kbit/s;網絡控制器與上位機之間采用以太網通信。
圖 5-18 變風量系統上位機軟件界面

(2)VAV 監控工作站軟件平臺組成:SMART-VAV 控制軟件 + 通用軟件。 開 放性軟件平臺可實現遠程數據監控和云端專家診斷,為客戶提供持續優化運行咨詢 服務。
(3)VAV 自控系統預留與 BA 系統的通信接口,方便 BA 系統集成,通信接口形式為 OPC。
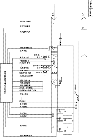
5.4.3新型變風量系統控制原理及網絡圖
(1)新型變風量系統控制原理圖如圖 5-19 所示。
圖 5-19 新型變風量系統控制原理圖

(2)新型變風量系統控制網絡圖如圖 5-20 所示。
圖 5-20 新型變風量系統控制網絡圖


